
RÕUK.
Pop-up Hotel
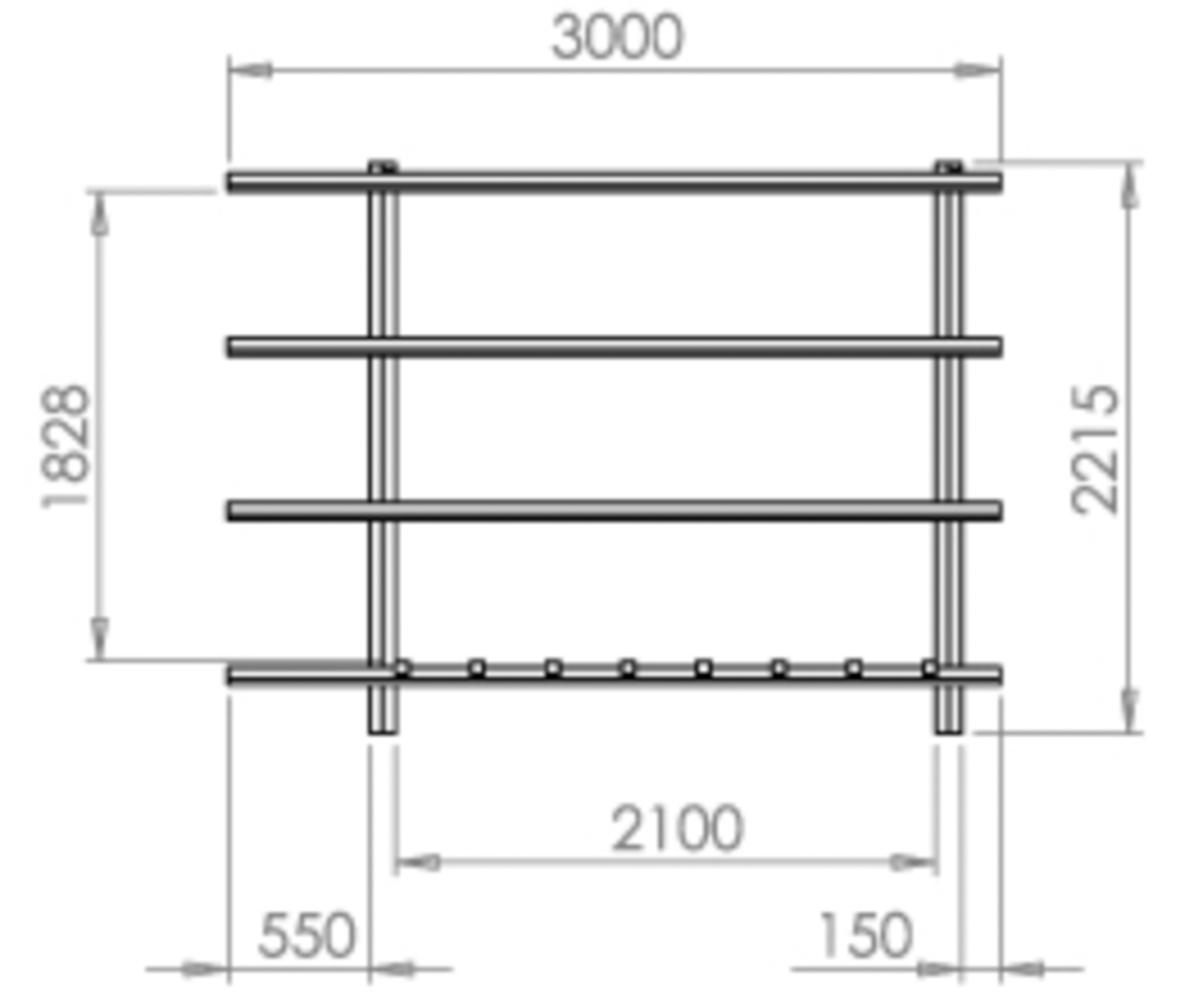
The Rõuk project, a collaborative design for the Juu Jääb Music Festival 2015, seamlessly integrated into its natural surroundings. Inspired by traditional hay drying frames, it featured a wooden framework with felt sleeping capsules, all crowned with a thatched roof. This innovative portable hotel concept was the collective brainchild of designers Pertti Pleer, Artur Leete, and Martin Petrov, offering festival-goers a unique and comfortable sleeping experience.
Rõuk






